- 賃貸マンション
- 契約金分割可
新宿区若松町のマンション 6階
6.6万円
(管理費 5,000円)
敷金(保証金):1ヶ月 / 礼金:無料
基本情報
- 種別
- マンション / 鉄筋コンクリート
- 所在階
- 6階 / 7階建
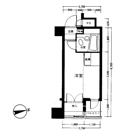
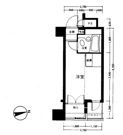
- 間取り
- 1R
- 築年月
- 1984年 3月 ※新耐震基準の建物です。
情報更新日:2026年04月14日 更新予定日:2026年04月23日
1分で完了!この物件にお問い合わせ(無料)
お問い合わせの内容を選択してください
部屋の設備・特徴
-

2階以上
-

収納スペース
-

エアコン
-

室内洗濯機
置き場 -

モニター付き
インターホン
物件概要
- 安心サポート24(無料)対象です
-
カギの紛失・電気・ガス・水道を含む様々なトラブルに対応できる安心サポートです。 24時間365日いつでも駆けつけるので、夜中や休日でも安心です。通常15,000円ほどかかるサービスを無料でご提供しております。
※貸主の指定業者がある場合はご利用いただけません。また、対象は部屋まるサイト掲載物件に限り、ご利用には契約が必要です。必ず弊社スタッフまでご確認ください。
- 間取り
- 1R
- エネルギー消費性能
- -
- 断熱性能
- -
- 目安光熱費
- -
- 所在階
- 6階 / 7階建
- 面積
- 17.12㎡
- 償却/敷引
- -/0万円
- 保証金
- 0ヶ月
- 総戸数
- 36戸
- 権利金/雑費
- -/-
- 駐車場/料金
- -/-
- 現状/入居可能日
- 居住中/2026-04月下旬
- 保険名/保険期間
- -/2年
- 保険加入/料金
- 有/15800円
- 保証会社詳細
- -
- 保証人代行
- 必加入
- 取引形態
- 仲介
- 賃貸区分/契約期間
- 一般/2年
- 備考
- 近くにはセブンイレブン 新宿若松町店(徒歩3分)がありちょっとした買い物に便利です。より多くの不動産情報をお求めなら、まずは 城南コミュニティまでご連絡ください。当社では、都営大江戸線若松河田を中心に多種多様な不動産情報を取り扱っております。
新宿区若松町のマンション 6階 徒歩圏内にある周辺施設
-
- 東京女子医科大学 膠原病リウマチ痛風センター
- 約298m/4分
-
- 東京女子医大 吉岡彌生記念室
- 約595m/8分
-

- 早稲田大学戸山キャンパス
- 約924m/12分
-
- 讃岐のおうどん花は咲く新宿戸山店
- 約449m/6分
-
- ドトールコーヒーショップ 若松河田店
- 約171m/3分
-
- タリーズコーヒー 新宿若松河田店
- 約190m/3分
-
- ドミノ・ピザ Domino'sPizza若松町
- 約318m/4分
-
- まいばすけっと 新宿原町3丁目店
- 約360m/5分
-

- セブンイレブン 新宿若松町店
- 約218m/3分
-
- セブンイレブン AIM総務省第二庁舎店
- 約477m/6分
-
- ナチュラルローソン NLS東京女子医大彌生記念棟店
- 約365m/5分
-
- スギドラッグ 新宿若松町店
- 約52m/1分
-
- クリエイトSD(エス・ディー) 新宿若松町店
- 約243m/4分
-
- メディカルファーマシィー
- 約286m/4分
-
- 牛込若松町郵便局
- 約315m/4分
-
- 牛込警察署 戸山町地域安全センター
- 約348m/5分
アクセスマップ
アドバイザーからのコメント

7万以下専門スタッフ 青山(あおやま)
部屋まる。安心サポート24(無料)
サービスを開始しました!
- 安心サポート24(無料)ご利用について
-
カギの紛失・電気・ガス・水道を含む様々なトラブルに対応できる安心サポートです。 24時間365日いつでも駆けつけるので、夜中や休日でも安心です。通常15,000円ほどかかるサービスを無料でご提供しております。
※貸主の指定業者がある場合はご利用いただけません。また、対象は部屋まるサイト掲載物件に限り、ご利用には契約が必要です。必ず弊社スタッフまでご確認ください。
「 部 屋 ま る 」 だ か ら こ そ 実 現 で き る
“ 新 し い 角 度 ” の お 部 屋 探 し
7万以下の新着物件が、毎日800件以上!
私たちはお客様にとって安全で安心な物件を探す専門店です。初めての一人暮らしでも専門スタッフが丁寧にサポートしていきます。
ご相談はもちろん無料。お気軽にご相談ください。
同じ市区町村のおすすめ物件
同じ最寄駅から探す
近隣の区から探す
1分で完了!この物件にお問い合わせ(無料)
050-5212-3772
お気軽にご相談ください♪


























この物件について
セブンイレブン 新宿若松町店まで徒歩3分と近場にコンビニがあるのもポイント。収納はシューズボックス・クロゼットなど豊富なので、広々と空間を利用することも可能です。来客時にはTVインターホンを使用して訪問者の顔を確認することができます。エアコンが設置されている物件です。このマンションはバルコニー付きで、用途に合わせて利用できます。光回線を繋げましたのでパソコン作業がスムーズです。住まいを探すにあたって、新宿区へお引っ越しを検討しているのであれば、 城南コミュニティにお任せください。