- 賃貸マンション
- 契約金分割可
AZEST西川口Ⅱ 201
7万円
(管理費 10,000円)
敷金(保証金):無料 / 礼金:無料
基本情報
- 種別
- マンション / 鉄筋コンクリート
- 所在階
- 2階 / 10階建
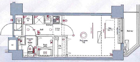
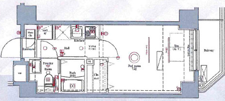
- 間取り
- 1K 洋室
- 築年月
- 2017年 3月 ※新耐震基準の建物です。
情報更新日:2026年01月25日 更新予定日:2026年02月06日
1分で完了!この物件にお問い合わせ(無料)
お問い合わせの内容を選択してください
部屋の設備・特徴
-

バストイレ別
-

2階以上
-

収納スペース
-

エアコン
-

室内洗濯機
置き場 -

フローリング
-

角部屋
-

インターネット無料
-

モニター付き
インターホン -

温水洗浄便座
-

宅配ボックス
-

オートロック
-

浴室乾燥
-

洗面所独立
-

ペット相談
物件概要
- 安心サポート24(無料)対象です
-
カギの紛失・電気・ガス・水道を含む様々なトラブルに対応できる安心サポートです。 24時間365日いつでも駆けつけるので、夜中や休日でも安心です。通常15,000円ほどかかるサービスを無料でご提供しております。
※貸主の指定業者がある場合はご利用いただけません。また、対象は部屋まるサイト掲載物件に限り、ご利用には契約が必要です。必ず弊社スタッフまでご確認ください。
- 間取り
- 1K 洋室
- エネルギー消費性能
- -
- 断熱性能
- -
- 目安光熱費
- -
- 所在階
- 2階 / 10階建
- 面積
- 23.17㎡
- 償却/敷引
- -/-
- 保証金
- 0ヶ月
- 総戸数
- -
- 権利金/雑費
- -/-
- 駐車場/料金
- -/-
- 現状/入居可能日
- 居住中/2026-02月中旬
- 保険名/保険期間
- ホープ少短/2年
- 保険加入/料金
- 有/20000円
- 保証会社詳細
- -
- 保証人代行
- 必加入
- 取引形態
- 仲介
- 賃貸区分/契約期間
- 一般/2年
- 備考
- セキュリティ面は、オートロック・TVインターホンなどを備え付けているので安心して暮らせます。室内設備は浴室乾燥機・洗面所独立など大変充実しております。共用部にはゴミ出し24時間OK・宅配ボックスなどが備わっておりとても充実しています。川口市の住まい探しをお手伝いします。 城南コミュニティがお客様に合った住まいをご紹介いたしますので、まずはお気軽にお問い合わせ下さい。
アクセスマップ
アドバイザーからのコメント

7万以下専門スタッフ さがしまる。
部屋まる。安心サポート24(無料)
サービスを開始しました!
- 安心サポート24(無料)ご利用について
-
カギの紛失・電気・ガス・水道を含む様々なトラブルに対応できる安心サポートです。 24時間365日いつでも駆けつけるので、夜中や休日でも安心です。通常15,000円ほどかかるサービスを無料でご提供しております。
※貸主の指定業者がある場合はご利用いただけません。また、対象は部屋まるサイト掲載物件に限り、ご利用には契約が必要です。必ず弊社スタッフまでご確認ください。
「 部 屋 ま る 」 だ か ら こ そ 実 現 で き る
“ 新 し い 角 度 ” の お 部 屋 探 し
7万以下の新着物件が、毎日800件以上!
私たちはお客様にとって安全で安心な物件を探す専門店です。初めての一人暮らしでも専門スタッフが丁寧にサポートしていきます。
ご相談はもちろん無料。お気軽にご相談ください。
同じ市区町村のおすすめ物件
同じ最寄駅から探す
近隣の区から探す
1分で完了!この物件にお問い合わせ(無料)
050-5212-3772
お気軽にご相談ください♪
























この物件について
共用部には宅配ボックス・ゴミ出し24時間OKなど様々な設備やサービスが揃っているので便利です。セキュリティ面は、TVインターホン・オートロックなど充実しているので、防犯対策もばっちりです。収納はクロゼット・押入など豊富なので、衣類や履き物の整理がしやすく便利です。室内設備は洗面所独立・浴室乾燥機などが揃っているので、快適に過ごしやすいお部屋になります。地上10階建てのマンションは、弊社イチオシの物件です。川口市で新しい住環境をお探しなら、西川口駅近くでお求めください。いつでも 城南コミュニティまでお気軽にお問い合わせください。