- 賃貸アパート
- 契約金分割可
セゾン松原A棟 203
5.2万円
(管理費 2,000円)
敷金(保証金):無料 / 礼金:無料
基本情報
- 種別
- アパート / 木造
- 所在階
- 2階 / 2階建
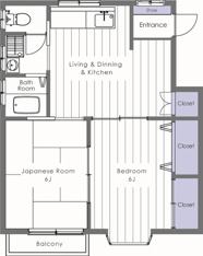
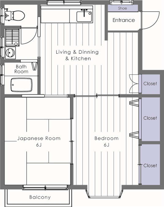
- 間取り
- 2LDK LDK 和室 6.0畳 洋室 6.0畳
- 築年月
- 1991年 5月 ※新耐震基準の建物です。
情報更新日:2026年02月05日 更新予定日:2026年02月19日
1分で完了!この物件にお問い合わせ(無料)
お問い合わせの内容を選択してください
部屋の設備・特徴
-

バストイレ別
-

2階以上
-

収納スペース
-

日当たり良い
-

室内洗濯機
置き場 -

フローリング
-

角部屋
物件概要
- 安心サポート24(無料)対象です
-
カギの紛失・電気・ガス・水道を含む様々なトラブルに対応できる安心サポートです。 24時間365日いつでも駆けつけるので、夜中や休日でも安心です。通常15,000円ほどかかるサービスを無料でご提供しております。
※貸主の指定業者がある場合はご利用いただけません。また、対象は部屋まるサイト掲載物件に限り、ご利用には契約が必要です。必ず弊社スタッフまでご確認ください。
- 間取り
- 2LDK LDK 和室 6.0畳 洋室 6.0畳
- エネルギー消費性能
- -
- 断熱性能
- -
- 目安光熱費
- -
- 所在階
- 2階 / 2階建
- 面積
- 52.78㎡
- 償却/敷引
- -/-
- 保証金
- -
- 総戸数
- 6戸
- 権利金/雑費
- -/-
- 駐車場/料金
- 空有/3000円 ※空き要確認
- 現状/入居可能日
- 賃貸中/2026-02月上旬
- 保険名/保険期間
- 火災保険(2年間)/2年
- 保険加入/料金
- 有/21500円
- 保証会社詳細
- -
- 保証人代行
- 必加入
- 取引形態
- 仲介
- 賃貸区分/契約期間
- 一般/2年
- 備考
- 室内設備はフローリング・バストイレ別など豊富に揃っており、過ごしやすいお部屋になっております。収納はクロゼット・シューズボックスなど豊富なので、衣類や履き物の整理がしやすく便利です。節約ができる二人で入居可能な物件です、生活費が半分こ。防犯効果の高い、管理人巡回あり。東松山市で新たな生活を始めるなら、東松山近くはいかがでしょうか?住まい探しは、 城南コミュニティにお任せ下さい。
アクセスマップ
アドバイザーからのコメント

7万以下専門スタッフ さがしまる。
部屋まる。安心サポート24(無料)
サービスを開始しました!
- 安心サポート24(無料)ご利用について
-
カギの紛失・電気・ガス・水道を含む様々なトラブルに対応できる安心サポートです。 24時間365日いつでも駆けつけるので、夜中や休日でも安心です。通常15,000円ほどかかるサービスを無料でご提供しております。
※貸主の指定業者がある場合はご利用いただけません。また、対象は部屋まるサイト掲載物件に限り、ご利用には契約が必要です。必ず弊社スタッフまでご確認ください。
「 部 屋 ま る 」 だ か ら こ そ 実 現 で き る
“ 新 し い 角 度 ” の お 部 屋 探 し
7万以下の新着物件が、毎日800件以上!
私たちはお客様にとって安全で安心な物件を探す専門店です。初めての一人暮らしでも専門スタッフが丁寧にサポートしていきます。
ご相談はもちろん無料。お気軽にご相談ください。
同じ市区町村のおすすめ物件
同じ最寄駅から探す
近隣の区から探す
1分で完了!この物件にお問い合わせ(無料)
050-5212-3772
お気軽にご相談ください♪
























この物件について
室内設備はフローリング・バストイレ別など充実した設備を備え付けています。収納はシューズボックス・クロゼットなどが備え付けられているので、衣類や日用品の収納に重宝します。バルコニーをご活用いただけます。二人で入居すれば、生活費を抑えられるので学生さんに一押しの物件です。こちらのアパートには自走式駐車場があります。設備も充実していて住みやすい、魅力が詰まったアパートです。利便性の高い暮らしをするなら東松山市へのお引越をご検討してみてはいかがでしょうか?住み良い環境が整っているので、生活に困ることはありません。賃貸情報のことなら、当社にお任せ下さい。